Belegung: 2 Erwachsene 2 Kinder, Motorisierung: V10
Motorisierung
V10
Getriebe
Automatik
Gesamtlänge
6,70 m
Breite
2,70 m
Außenhöhe
3,30 m
Innenhöhe
2,11 m
Empfohlene max. Belegung
2 Erwachsene / 2 Kinder / 4 Sitzgurte
4 Schlafplätze
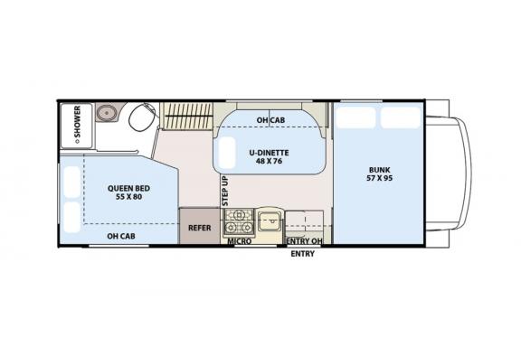
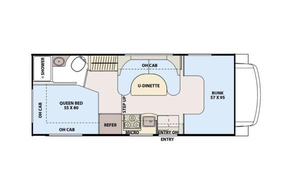
Bett hinten im Fahrzeug (139 x 203 cm), Bett im Alkoven (144 x 241 cm)
Kindersitz-Befestigung
möglich
Technische Angaben
ca. 24 -30 L Verbrauch / 100 km, Klimaanlage in Fahrerkabine, Klimaanlage im Wohnbereich, Servolenkung, Servobremse, Generator, Tempomat, Duales Batteriesystem, Radio I-Pod Connect/USB/MP3, , DVD-Player, Generator
Einrichtungen in Küche und Bad
Kühlschrank, Herd, Mikrowelle, Spüle, Elektrische Wasserpumpe, Fließend Kaltwasser, Fließend Warmwasser, Heizung im Wohnbereich, Dusche, Waschbecken, Toilette, Frischwassertank: 151 - 189 L, Abwassertank: Greywater 75 L, Blackwater 75 L
Ausstattung und Bettenmaße können vor Ort variieren.
Explore the Wild!
Betreten Sie das Fahrzeug und sehen Sie was auf Sie im Innenraum wartet. Klicken Sie auf die Wiedergabetaste im Bild.

Schieben Sie den Regler in der Mitte des Bildes nach links oder rechts um die verschiedenen Ansichten zu sehen. Die Grundrisse können innerhalb der einzelnen Fahrzeugkategorien leicht abweichen.

